Široký výber kvalitného nábytku za najlepšiu cenu.

Montáž kuchynskej linky NATALIA - blok 1,8/2,4 m

07.04.2021

Montáž kuchynskej linky NATALIA  - blok 1,8/2,4 m

Návod na montáž kuchynskej linky NATALIA .

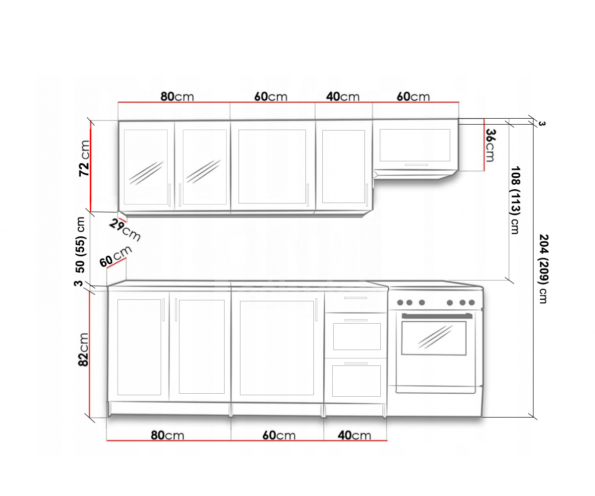
Natalia kuch linka

Montáž skriniek-

zmontujte všetky  skrinky podľa obrázkového montážneho  návodu. Návody sa nachádzajú vo vnútri balíkov.

Postupne si zmontujte spodnú drezovú 80 cm širokú skrinku, zásuvkovú 40, spodnú 60, vrchnú 80, 60, 40  a skrinku nad digestor 60 cm.

Dvierka zatiaľ nemontujte, budete ich  montovať až nakoniec na nainštalované a postavené skrinky.

 

Inštalácia spodných skriniek

rozplánujte si, kde akú skrinku umiestnite.

Rozhodujúca  je drezová skrinka, tá musí ísť tam, kde je voda a sifón.

Ku nej potom priradíte skrinky: zásuvkovú a 60-ku.

Ku kuchyni Natália nie je dodávaná pracovná doska. Ponúkame pracovnú dosku 1,8 m za  59€ -opáskovanú.

Osadenie drezu podľa požiadavky stojí 10€ a drez Deva s odkvapkávačom a sifónom je za 45 €. Hrúbka pracovnej dosky je buď 28 alebo 38 mm. Dosku pripevnite zospodu ku skrinkám skrutkami.          

Na drez nainštalujte sifón a pripojte ho ku potrubiu na odpad.

Rovnako tak odizolujte tmelom pracovné dosky so stenou, aby za dosku nezatekala voda. V prípade nerovnosti podlahy je potrebné skrinky vypodložiť do roviny.

Inštalácia horných skriniek.

Horné skrinky inštalujte podľa spodných: nad spodnou 80-kou bude vrchná 80-kou, atď.

Medzi pracovnou doskou a spodkom horných skriniek je potrebná medzera 50-55 cm. Pre nižšie osoby doporučujeme 50 cm.

Skrinky budete vešať na kovové montovacie lišty - profil "H".

Pomocou skrutiek a hmoždeniek pripevnite na stenu po dve lišty pre každú skrinku.

Lišty umiestňujte cca 18 mm od okrajov skriniek- tak aby bok skrinky neprekrýval lištu.

Potom skrinky zaveste na tieto namontované lišty a nastavte polohu  pomocou skrutiek na závesných hákoch „I“.

 

Na takto vyrovnané spodné a vrchné korpusy skriniek podľa návodu pripevnite dvierka.

Na dvierkach môžete nastaviť polohu - výšku, odklon, medzeru medzi dvierkami pomocou skrutiek na závesoch podľa obrázku:

 pánty kuchynskej linky Natália

Nakoniec môžete skrinky medzi sebou zoskrutkovať spojovacími skrutkami .

kuch linka Natalia zavesenie

Pre montáž bez omylov a chýb pre Vás pripravil     - www.elbyt.sk

Čo to je samostatný box?

Toto je pokus na to, aby som zistil, čo to vlastne je ten samostatný box....☺

YTI0Zj